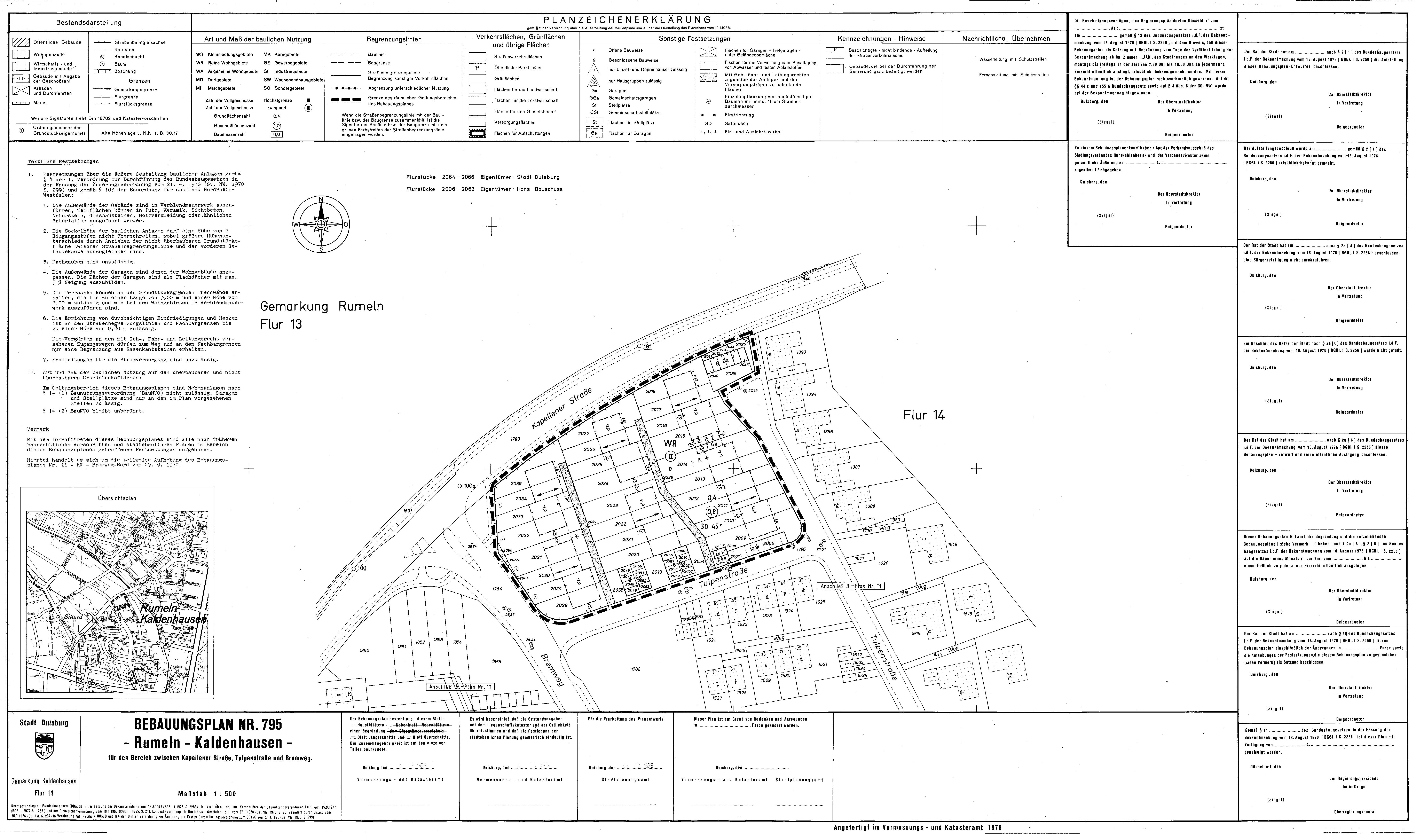
Bebauungsplan
795 - Rumeln-Kaldenhausen
im Stadtplan anzeigen
Plan Auskunft
Downloads
Verfahrensschritt:
rechtskräftiges Verfahren
Verfahrensübersicht:
795 - Rumeln - Kaldenhausen
Datum
Verfahrensschritt
11.06.1979 - 12.07.1979
öffentliche Auslegung
31.03.1980
Bekanntmachung im Amtsblatt gemäß
§ 10 Abs. 3 BauGB
Downloads
(
alle Dateien herunterladen
)
B-Plan Scan
3 MB