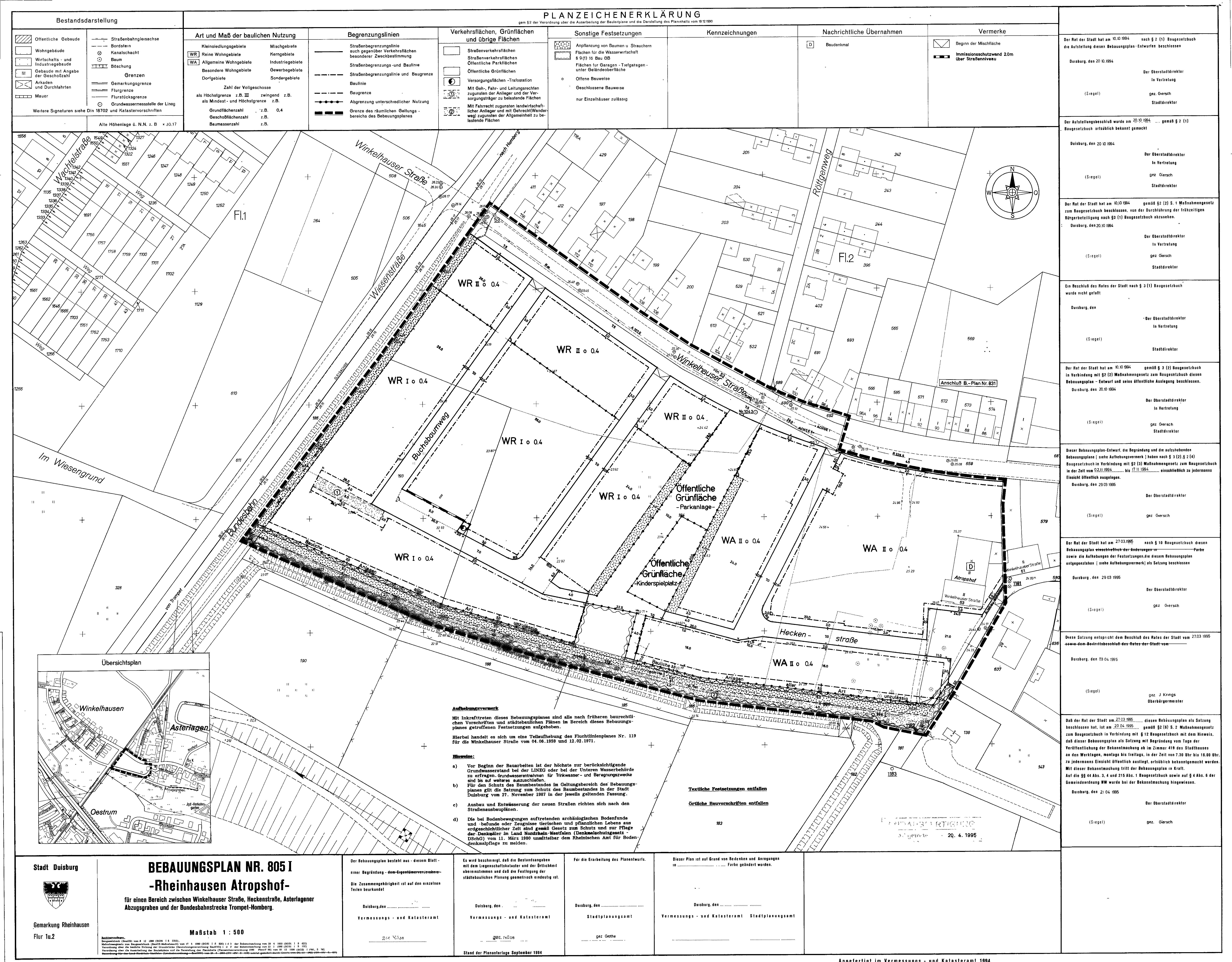
Bebauungsplan
805 I - Rheinhausen
im Stadtplan anzeigen
Plan Auskunft
Downloads
für einen Bereich:
zwischen Winkelhauser Straße, Heckenstraße, Asterlagener Abzugsgraben
und der Bundesbahnstrecke Trompet-Homberg
Verfahrensschritt:
rechtskräftiges Verfahren
Verfahrensübersicht:
805 I - Rheinhausen Atropshof -
Datum
Verfahrensschritt
10.10.1994
Aufstellungsbeschluss
02.11.1994 - 17.11.1994
öffentliche Auslegung
20.04.1995
Bekanntmachung im Amtsblatt gemäß
§ 10 Abs. 3 BauGB
Downloads
(
alle Dateien herunterladen
)
B-Plan Scan
4 MB