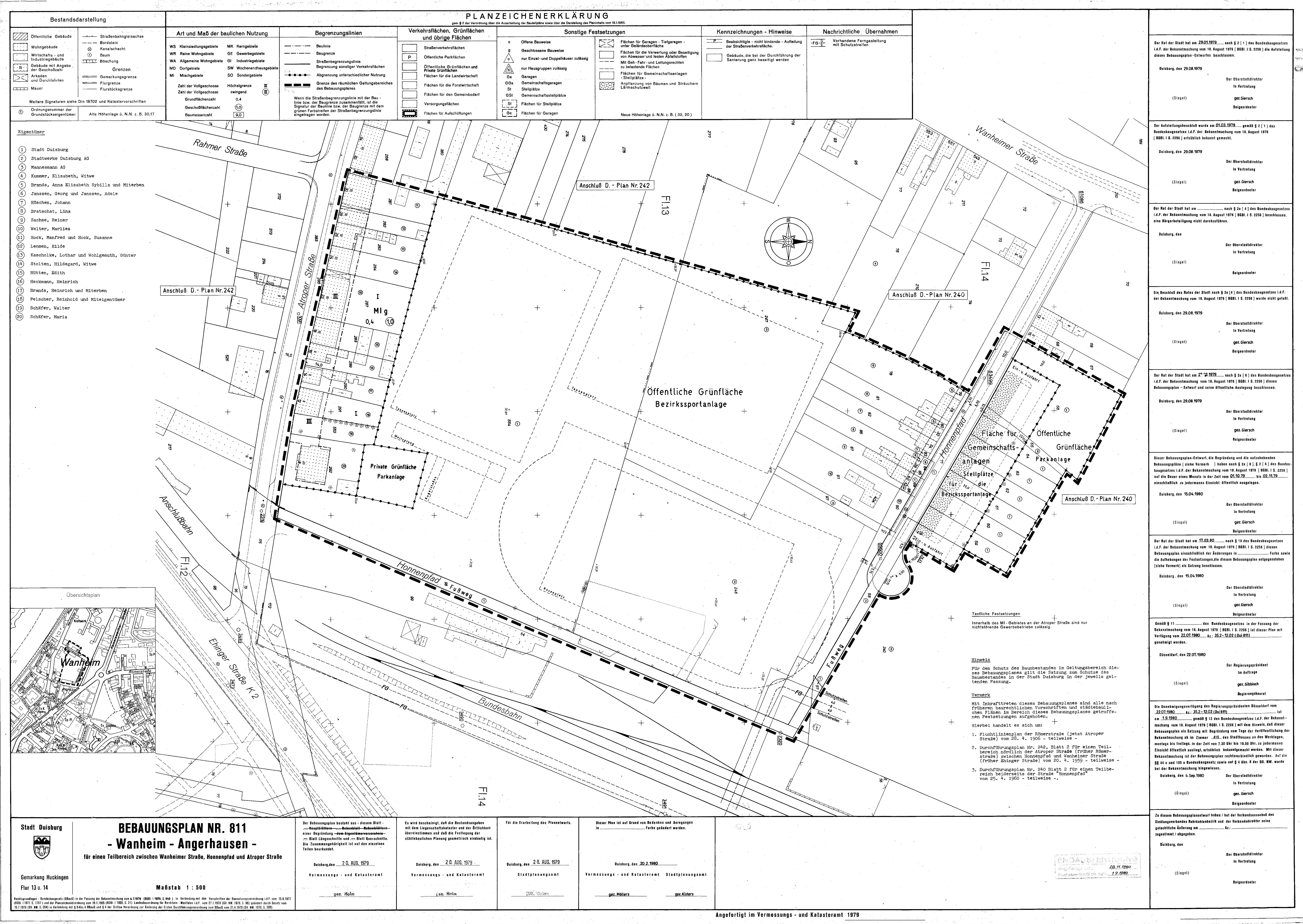
Bebauungsplan
811 - Wanheim-Angerhausen
im Stadtplan anzeigen
Plan Auskunft
Downloads
Verfahrensschritt:
rechtskräftiges Verfahren
Verfahrensübersicht:
811 - Wanheim - Angerhausen
Datum
Verfahrensschritt
29.01.1979
Aufstellungsbeschluss
01.10.1979 - 02.11.1979
öffentliche Auslegung
17.03.1980
Satzungsbeschluß
01.09.1980
Bekanntmachung im Amtsblatt gemäß
§ 10 Abs. 3 BauGB
Downloads
(
alle Dateien herunterladen
)
B-Plan Scan
4,2 MB