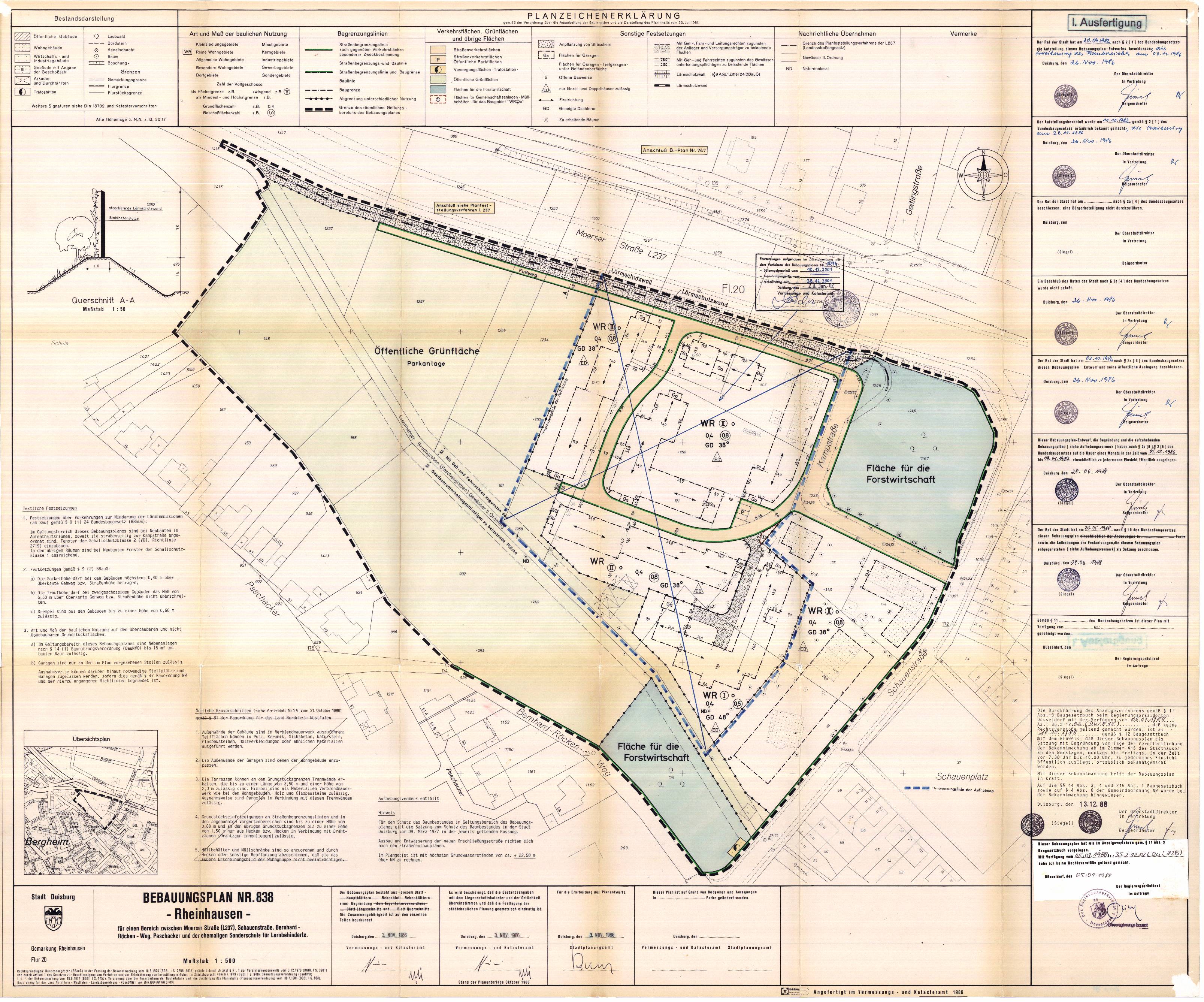
Bebauungsplan
838 - Bergheim
im Stadtplan anzeigen
Plan Auskunft
Downloads
für einen Bereich:
zwischen Moerser Straße (L237), Schauenstraße, Bernhard-Röcken-Weg, Paschacker und der ehemaligen Sonderschule für Lernbehinderte
Verfahrensschritt:
rechtskräftiges Verfahren
Verfahrensübersicht:
838 - Rheinhausen
Datum
Verfahrensschritt
20.09.1982
Aufstellungsbeschluss
03.11.1986
Auslegungssbeschluss
01.12.1986 - 09.01.1987
öffentliche Auslegung
30.05.1988
Satzungsbeschluß
10.10.1988
Bekanntmachung im Amtsblatt gemäß
§ 10 Abs. 3 BauGB
Bemerkung:
Örtl. Bauvorschr.s.Amtsblatt Nr.35 v.31.10.1988 - Teilw. Aufheb. d. B 1014
Downloads
(
alle Dateien herunterladen
)
B-Plan Scan
1,5 MB