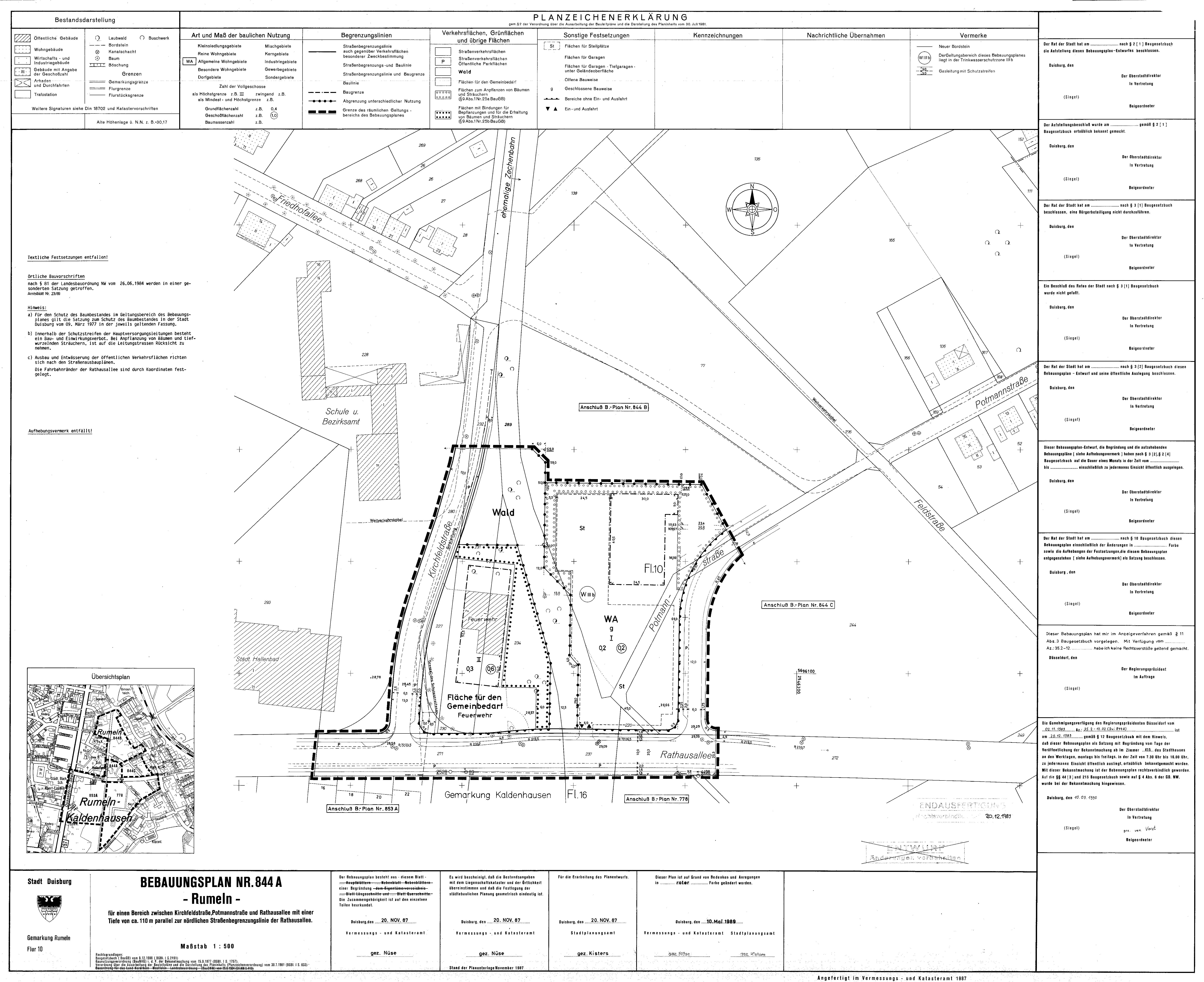
Bebauungsplan
844 A - Rumeln
im Stadtplan anzeigen
Plan Auskunft
Downloads
für einen Bereich zwischen:
Kirchfeldstraße, Potmannstraße und Rathausallee mit einer Tiefe von
ca. 110m parallel zur nördlichen Straßenbegrenzungslinie der Rathausallee
Verfahrensschritt:
rechtskräftiges Verfahren
Verfahrensübersicht:
844 A - Rumeln
Datum
Verfahrensschritt
25.05.1981
Aufstellungsbeschluss
04.01.1988 - 05.02.1988
öffentliche Auslegung
20.12.1989
Bekanntmachung im Amtsblatt gemäß
§ 10 Abs. 3 BauGB
Bemerkung:
Örtliche Bauvorschriften siehe Amtsblatt Nr.23/89
Downloads
(
alle Dateien herunterladen
)
B-Plan Scan
3,1 MB