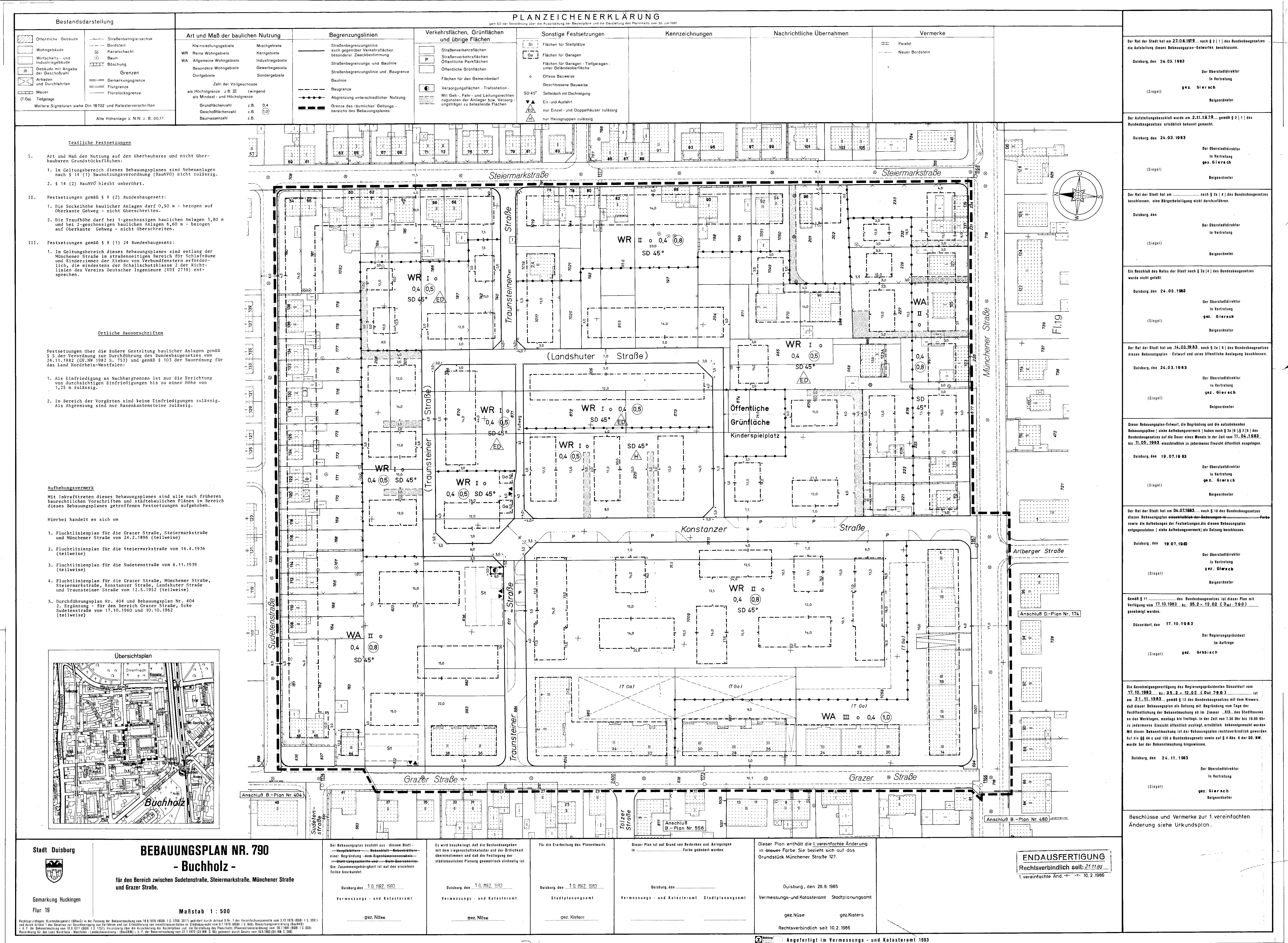
Bebauungsplan
790 - Buchholz
im Stadtplan anzeigen
Plan Auskunft
Downloads
Verfahrensschritt:
rechtskräftiges Verfahren
Verfahrensübersicht:
1
2
BPlan 790 1. vereinf. Änd.
Datum
Verfahrensschritt
10.02.1986
Bekanntmachung im Amtsblatt gemäß
§ 10 Abs. 3 BauGB
Bemerkung:
"in blauer Farbe, Münchener Str. 127"
BPlan 790
Datum
Verfahrensschritt
11.04.1983 - 11.05.1983
öffentliche Auslegung
21.11.1983
Bekanntmachung im Amtsblatt gemäß
§ 10 Abs. 3 BauGB
Downloads
(
alle Dateien herunterladen
)
B-Plan Scan
4,5 MB
Begründung zum BPlan 790
0,9 MB
Begründung zur 1. vereinf. Änd. des BPlan 790
23 KB