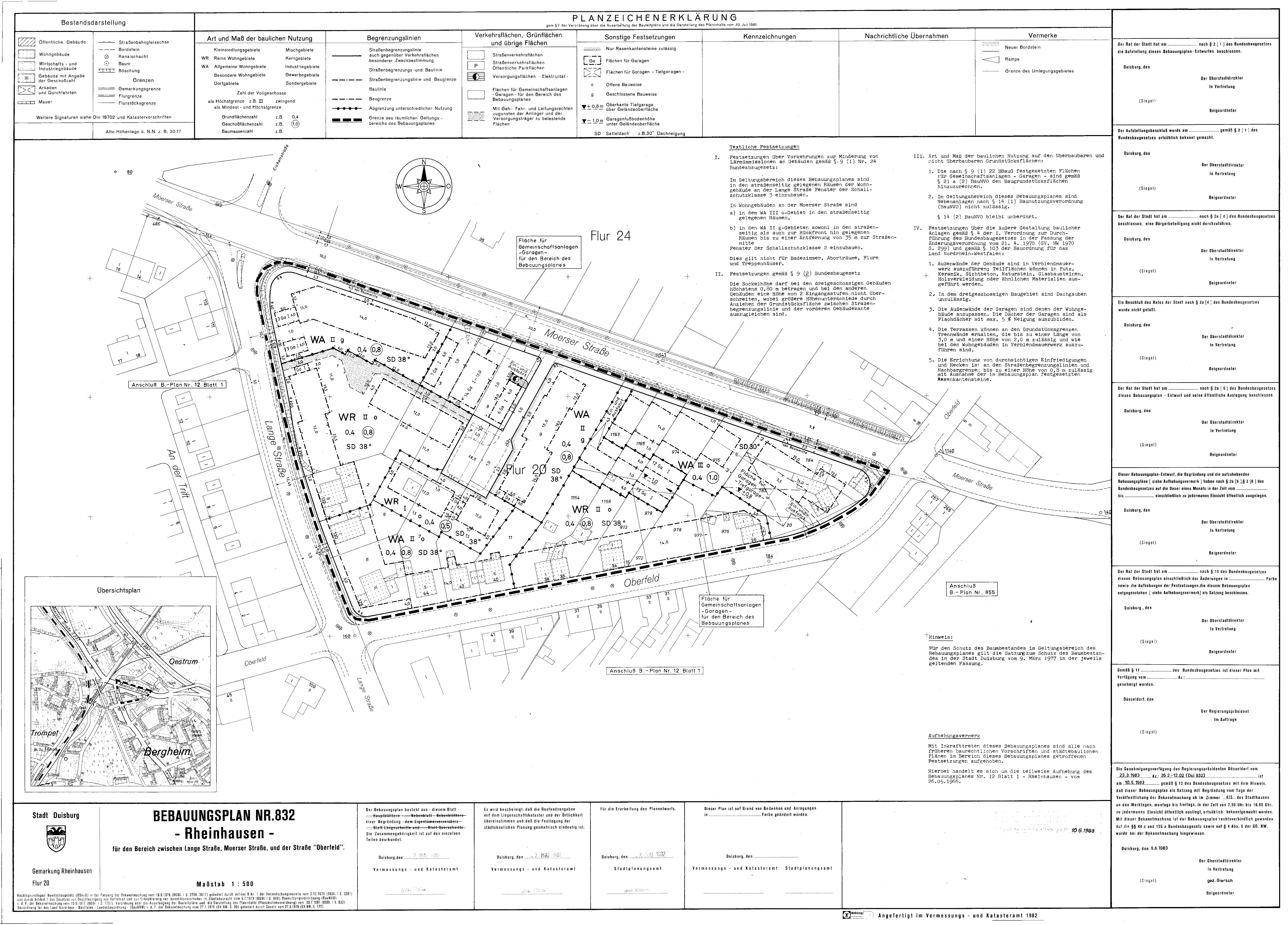
Bebauungsplan
832 - Rheinhausen
im Stadtplan anzeigen
Plan Auskunft
Downloads
für den Bereich zwischen:
Lange Straße, Moerser Straße und der Straße Oberfeld
Verfahrensschritt:
rechtskräftiges Verfahren
Verfahrensübersicht:
832 - Rheinhausen -
Datum
Verfahrensschritt
10.05.1983
Bekanntmachung im Amtsblatt gemäß
§ 10 Abs. 3 BauGB
Downloads
(
alle Dateien herunterladen
)
Bebauungsplan
3,4 MB
Begründung
0,5 MB